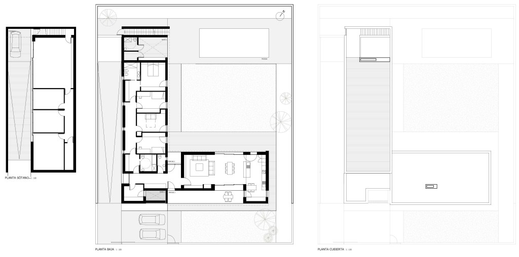
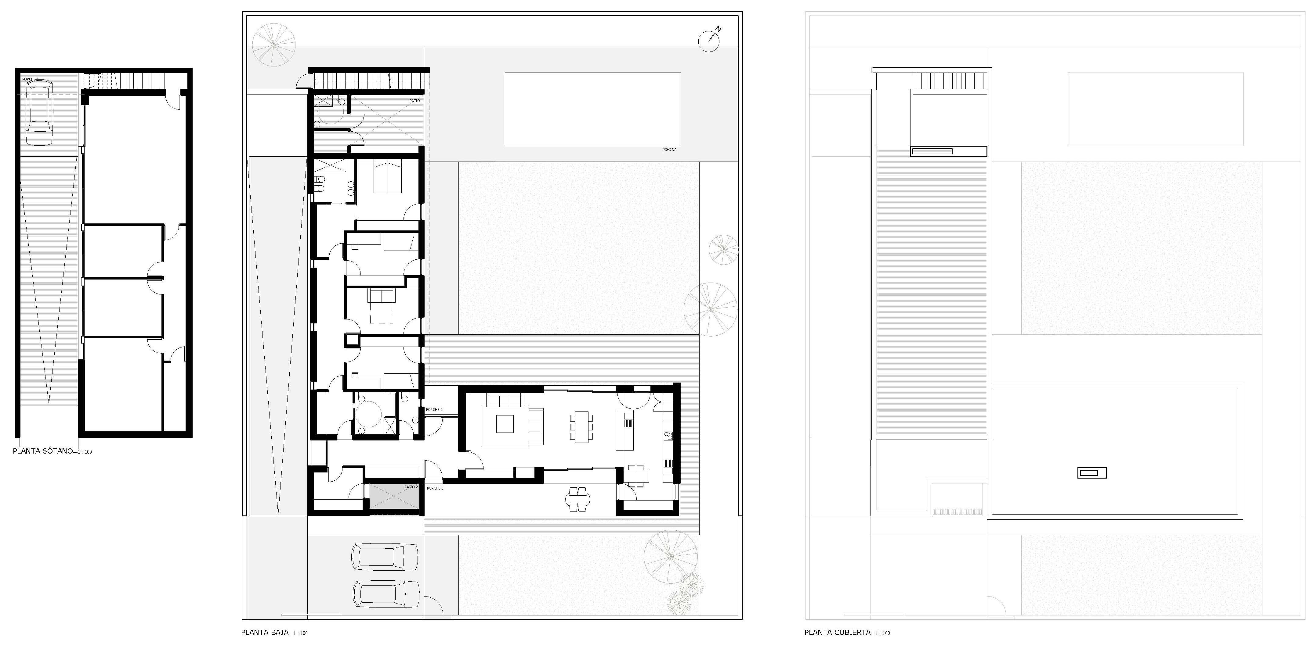
VIVIENDA UNIFAMILIAR

VIVIVIENDA UNIFAMILIAR 

SITUACIÓN:

URBANIZACIÓN LA JULIANA, BOLLULLOS (SEVILLA)

ARQUITECTOS:

RAFAEL ALCÁNTARA PEDRAJAS

MANUEL PINEDO TORRES

FINAL DE OBRA: 

JUNIO 2021